
Fruit d’une collaboration engagée depuis 2014 avec l’agence Lalou+Lebec, mandataire de l’opération, cette réalisation s’implante sur l’ancienne friche Fives Cail Babcock, en vis-à -vis de la Bourse du travail, boulevard de l’Usine.
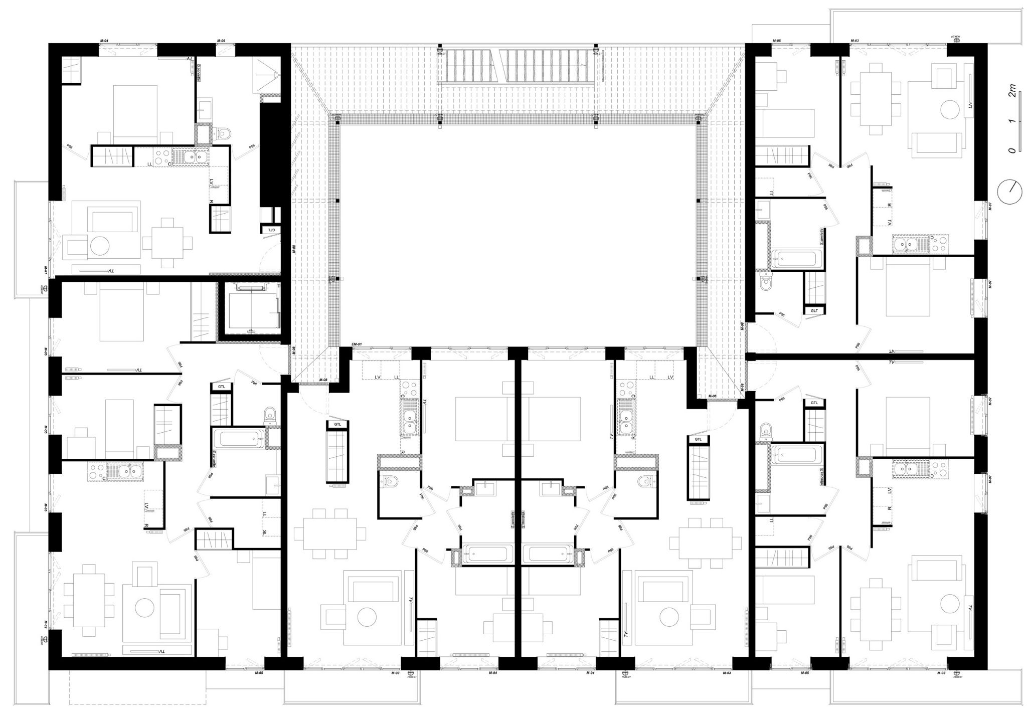
Le projet répond aux exigences précises fixées par la ville de Lille, la ZAC Fives Cail et la maîtrise d’ouvrage : un ascenseur unique pour 41 logements, du T2 au T4, tous à double orientation, sans dépasser sept niveaux au-dessus du rez-de-chaussée. De cette équation rigoureuse découle l’expression architecturale de l’immeuble : une distribution par coursives, escaliers et passerelles métalliques extérieurs, distancés des façades vitrées et enveloppant un vaste atrium.
Cette organisation, à la fois rationnelle et expressive, fait écho aux archétypes industriels et à l’histoire du site, tout en offrant un cadre de vie lumineux et ouvert.
Études et suivi des travaux pour Lalou+Lebec.








